首页 >Products>LED traffic light series>RED FORK GREEN ARROW DRIVEWAY LIGHTS
产品技术参数:
| 直径 | 型号 | 类别码 | 颜色 | LED数量 | 亮度或光强 | 波长 | 功率 | 工作电压 |
| 600mm | CD600-3-FM11 | TYPE02 | 红 | 60pcs | >5000cd/㎡ | 625±5nm | ≤21W | 12V/24VDC AC85-265V 50/60Hz |
| 绿 | 40pcs | >5000cd/㎡ | 505±5nm | ≤14W | ||||
| 红绿双色 | 14pcs | >5000cd/㎡ | - | - | ||||
| 工作环境温度 | -40℃~+80℃ | |||||||
| 外壳材质 | 冷扎板 | |||||||
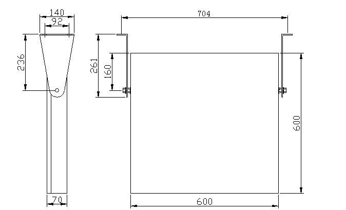
交通信号灯尺寸:
